Search

Leave a Message

Thank you for your message. I will be in touch with you shortly.

Explore Properties

Property Description

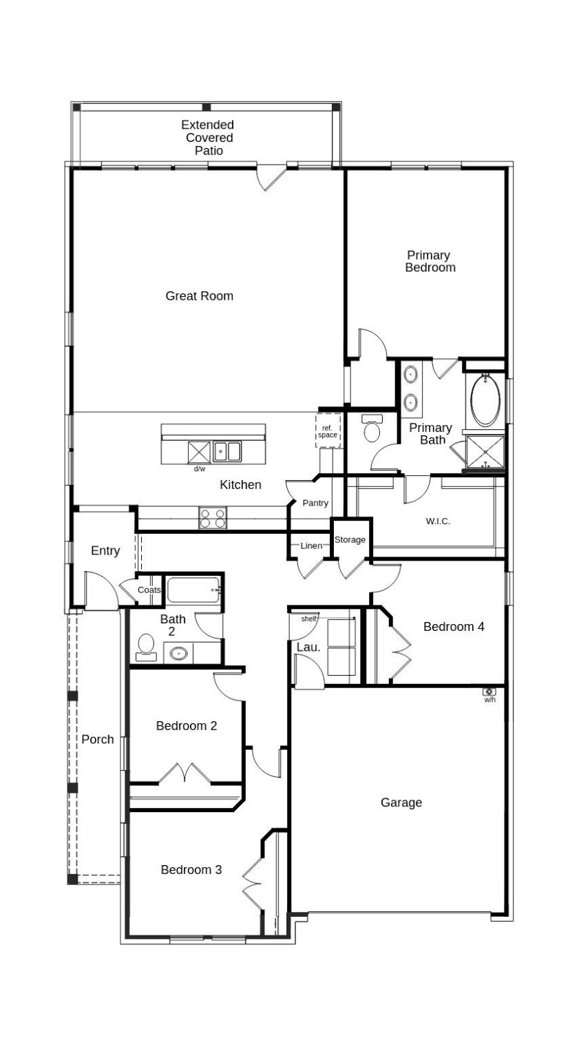
This stunning home features an open concept kitchen and living area, highlighted by an 8 ft stained entry door and elegant 5 panel interior doors. The gourmet kitchen boasts quartz countertops and top-notch stainless steel appliances, including a gas range with no preheat mode and fingerprint-resistant finishes. The primary bathroom offers a separate tub and shower with a stylish tile surround, while outdoors you'll find an extended covered patio, automatic sprinklers, and stone veneer exterior. Plus, enjoy tech-forward touches like a Kwikset smartkey entry door handleset, USB receptacles, and spacious closets throughout. Current time frames before closing may be longer than originally anticipated. See sales counselor for approximate timing required for move-in ready homes. Ask sales counselor about closing cost and rate buy down opportunities.

Overview

Property Status
Sold
Lot Size
6,534 Sq.Ft.
MLS ID
20830861
Property Type
Residential
Year Built
2025

Features & Amenities

Architecture Styles
Traditional, Detached
Stories
1
Garage Spaces
2.0
Water Source
Public
Utilites
Sewer Available, Water Available, Cable Available
Pool
None, Community
Roof
Composition
Lot Features
Landscaped, Subdivision, Sprinkler System
Parking
Garage Faces Front
Heat Type
Central, Natural Gas
Air Conditioning
Central Air, Electric
Laundry Room
Washer Hookup, Electric Dryer Hookup
Appliances
Dishwasher, Gas Cooktop, Disposal, Microwave, Tankless Water Heater, Vented Exhaust Fan
Other Interior Features
Decorative/Designer Lighting Fixtures, Eat-in Kitchen, High Speed Internet, Kitchen Island, Open Floorplan, Pantry, Cable TV, Walk-In Closet(s)
Sewer
Public Sewer
Substructure
Slab
Security Features
Carbon Monoxide Detector(s), Smoke Detector(s)
Other Exterior Features
Lighting, Rain Gutters
Elementary School
Justin
Middle School
Pike
High School
Northwest
School District
Northwest ISD
Price Upon Request

Downloads

501 Claremont Drive

Schedule a Tour

I would love to help you see this beautiful home! As a full-service brokerage, I can help you tour. Please submit an offer, and answer questions about the buying process.

Enter a valid email

Thank you

for your interest in 501 Claremont Drive, Justin, TX 76247

back to page
501 Claremont Drive
Navigate
501 Claremont Drive
explore in 3d

I'm Interested In

501 Claremont Drive

or
  • CallAustin Wyble

    License #0690063

    (409) 718-8868
  • Follow Us On Instagram